Porzione di bifamiliare in vendita

Cesenatico, Via zara
€ 545.000
154 Mq 154 Mq
3 bagni 3 bagni

Porzione di bifamiliare in vendita

Cesenatico, Via zara

Descrizione annuncio

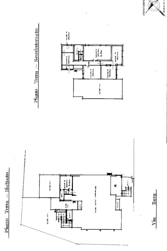
CESENATICO - LEVANTE: in zona tranquilla, a pochi passi dal mare e comoda a tutti i principali servizi, proponiamo in vendita una casa indipendente con giardino privato e doppio garage.

L'immobile è composto da due appartamenti distinti, ideale per due nuclei familiari o come soluzione abitativa con possibilità di investimento.

Entrando nella soluzione al primo piano troviamo un comodo studio con bagno, attraverso le scale interne accediamo al primo piano dove ci accoglie un'ampia zona giorno con accesso al terrazzo abitabile, perfetta per momenti di relax e convivialità. La cucina, separata, è spaziosa e ben organizzata. Proseguendo, si accede alla zona notte, composta da due camere da letto, ideali per una famiglia o per chi necessita di una stanza per gli ospiti, infine troviamo un comodo bagno con box doccia.

Tramite la scala interna accediamo al secondo piano, comosto da; un ampio soggiorno,la cucina abitabile con accesso al terrazzo, due camere da letto, inoltre la soluzione offre un ampio terazzo di 22 mq ideale per trascorre momenti di relax all'aperto.

Al piano interrato, un'ampia cantina per soddisfare ogni esigenza di spazio e organizzazione.

La struttura è ben mantenuta e offre un'opportunità interessante per chi desidera vivere in una zona ricca di storia e cultura, con la possibilità di personalizzare gli ambienti secondo le proprie esigenze.

Mostra tutto

Nelle vicinanze

Trasporto pubblico Trasporto pubblico
stazione di Cesenatico
stazione di Cesenatico
830 m
Cesenatico Palazzo Turism
Cesenatico Palazzo Turism
200 m
Grattacielo
Grattacielo
280 m
Ricariche auto elettriche Ricariche auto elettriche
Cesenatico Carducci | EnelX
440 m
Hotel Valverde & Residenza
2,5 Km
Scuole Scuole
Scuola Primaria "Leonardo Da Vinci"
790 m
Scuole
1,1 Km
Farmacia Farmacia
Farmacia Ippocampo
230 m
Farmacia
390 m
Parafarmacia internazionale
480 m
Farmacia Ioli
490 m
Farmacia San Pietro
940 m
Ospedali Ospedali
CRI Cesenatico
430 m
Ospedale di Cesenatico
1,3 Km
Supermercati Supermercati
Conad
550 m
Eurospin
850 m
Famila
1,2 Km
Supermercati
2,5 Km
Crai
2,9 Km
Negozi Negozi
Street & sport
490 m
Sandra Shopping
490 m
La Fiaccola
2,6 Km
Anastasia Boutique
2,6 Km
Negozi
2,8 Km
Bar Bar
Bar dei Pini
80 m
Bar Mattira
350 m
Venice Beach Club
450 m
Bar
510 m
Molo 95
730 m
Ristoranti Ristoranti
Ristorante Ca' Nostra
380 m
La "Trattoria"
380 m
Ristorante Da Giuliano
440 m
Peccato di Gola
490 m
Ristorante Clan Pavì
490 m
Mostra tutto

Caratteristiche

Rif.:
61123379
Piano:
2 di 2 (Piano ammezzato)
Box:
2
Balconi:
3
Terrazzi:
1
Arredamento:
Parziale
Mostra tutto
Prezzo Prezzo
€ 545.000
Rata mutuo Rata mutuo
€ 2.497 / mese
Spese annue Spese annue
€ 0
Proponi il tuo prezzoProponi il tuo prezzo

Classe Energetica

Questo immobile è esente da classe energetica
Riscaldamento:
Autonomo
Tipo impianto:
A radiatori
Tipo alimentazione:
Metano

Ti interessa visionare l'immobile?

Fissa un appuntamento  Fissa un appuntamento

Richiedi informazioni

* Questi campi sono obbligatori

Calcola il tuo mutuo

Semplice e senza impegno
Anticipo

( % )
Mutuo

( % )

pochi semplici passi

inserisci i tuoi dati
Questionario completato
Grazie per aver richiesto un appuntamento senza impegno con un nostro Consulente del Credito e Assicurativo.

Hai inserito correttamente tutti i dati necessari e a breve riceverai una e-mail con un link da convalidare per inviare i tuoi dati.
Affiliato
Studio Cesenatico Srl
Viale Roma, 77/79 47042 Cesenatico (FC)

Il nostro staff


  • Lorenzo Pagliarani
    Affiliato
Viale Roma, 77/79 47042 Cesenatico (FC)
Zona: Cesenatico Levante - Centro Storico
Mostra su mappa
Orari: Dal lunedì al venerdì dalle ore 9 alle ore 13 e dalle ore 15 alle ore 19.30. Sabato dalle ore 9 alle ore 13 e dalle ore 15 alle ore 18.
Affiliato
Studio Cesenatico Srl
Viale Roma, 77/79 47042 Cesenatico (FC)

2025 Tecnocasa Franchising S.p.A. - P. IVA 08365160152 - Via Monte Bianco 60/A 20089 Rozzano (MI). Ogni agenzia ha un proprio titolare ed è autonoma. Privacy policy | Policy utilizzo | Cookie policy