Trilocale in vendita

Cesenatico, Viale E. de Amicis
€ 318.000
3 locali 3 locali
83 Mq 83 Mq
1 bagno 1 bagno

Trilocale in vendita

Cesenatico, Viale E. de Amicis

Descrizione annuncio

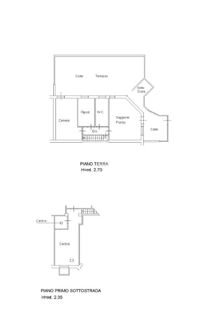
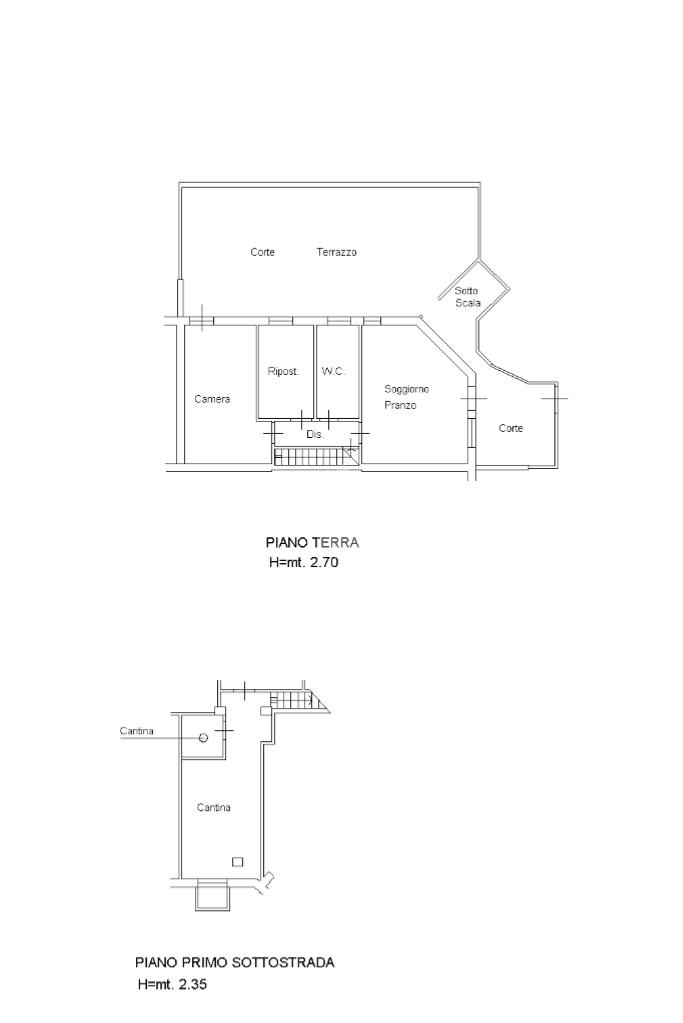
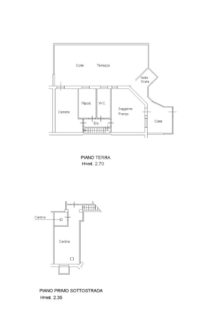
CESENATICO-LEVANTE: In zona tranquilla, a breve distanza dal mare, proponiamo in vendita un appartamento al piano terra con ingresso indipendente, ideale per chi cerca comfort, praticità e privacy.

Tramite l’ingresso indipendente si accede alla corte di proprietà, dotata di camino per barbecue e arricchita da un ampia corte sul retro, ideale per momenti di relax all’aria aperta in totale privacy.

L'immobile è composto da un ampio soggiorno luminoso con cucina a vista, un bagno finiestrato con box doccia e due comode camere da letto.

Al piano interrato, collegato direttamente dall’abitazione, si trova un ampio spazio accessorio che ospita un secondo soggiorno/taverna, un comodo garage e una zona lavanderia dedicata.

La proprietà è dotata di un garage nel piano sotterraneo, garantendo comodità per il parcheggio.

Ottima soluzione come casa vacanze o per chi cerca un appartamento per vivere tutto l'anno.

Mostra tutto

Nelle vicinanze

Trasporto pubblico Trasporto pubblico
stazione di Cesenatico
stazione di Cesenatico
1,7 Km
Cesenatico Carducci/Milan
Cesenatico Carducci/Milan
270 m
Trasporto pubblico
590 m
Ricariche auto elettriche Ricariche auto elettriche
Cesenatico Carducci | EnelX
700 m
Hotel Valverde & Residenza
1,4 Km
Scuole Scuole
Scuole
290 m
Scuola Primaria "Leonardo Da Vinci"
1,8 Km
Polo Scolastico Villamarina
2,3 Km
Farmacia Farmacia
Farmacia Ippocampo
970 m
Farmacia Ioli
1,4 Km
Farmacia
1,4 Km
Parafarmacia internazionale
1,5 Km
Farmacia San Pietro
2,0 Km
Ospedali Ospedali
Ospedale di Cesenatico
390 m
CRI Cesenatico
1,3 Km
Supermercati Supermercati
Conad
1,1 Km
Supermercati
1,5 Km
Eurospin
1,8 Km
Famila
2,1 Km
Negozi Negozi
Street & sport
1,4 Km
Sandra Shopping
1,4 Km
La Fiaccola
1,6 Km
Anastasia Boutique
1,6 Km
Negozi
2,8 Km
Bar Bar
Bar
660 m
Bar dei Pini
990 m
Venice Beach Club
1,2 Km
Bar Mattira
1,4 Km
Molo 95
1,6 Km
Ristoranti Ristoranti
Ristoranti
250 m
Bagno Marconi
300 m
Friggitoria da Ciro
530 m
Teresina
530 m
I du Matt Ristorante Bruschetteria
530 m
Mostra tutto

Caratteristiche

Rif.:
61118086
Piano:
Terra di 3
Totale piani:
3
Box:
1
Camere da letto:
2
Arredamento:
Parziale
Mostra tutto
Prezzo Prezzo
€ 318.000
Rata mutuo Rata mutuo
€ 1.457 / mese
Spese annue Spese annue
€ 500
Proponi il tuo prezzoProponi il tuo prezzo
Immobile valutato con TecnoValore

Classe Energetica

D
D
D
D
D
D
D
D
D
EP globale non rinnovabile:
126.81 kW h/m² anno
Anno di costruzione:
2004
Riscaldamento:
Autonomo
Tipo impianto:
A radiatori
Tipo alimentazione:
Metano

Ti interessa visionare l'immobile?

Fissa un appuntamento  Fissa un appuntamento

Richiedi informazioni

* Questi campi sono obbligatori

Calcola il tuo mutuo

Semplice e senza impegno
Anticipo

( % )
Mutuo

( % )

pochi semplici passi

inserisci i tuoi dati
Questionario completato
Grazie per aver richiesto un appuntamento senza impegno con un nostro Consulente del Credito e Assicurativo.

Hai inserito correttamente tutti i dati necessari e a breve riceverai una e-mail con un link da convalidare per inviare i tuoi dati.
Affiliato
Studio Cesenatico Srl
Viale Roma, 77/79 47042 Cesenatico (FC)

Il nostro staff


  • Lorenzo Pagliarani
    Affiliato
Viale Roma, 77/79 47042 Cesenatico (FC)
Zona: Cesenatico Levante - Centro Storico
Mostra su mappa
Orari: Dal lunedì al venerdì dalle ore 9 alle ore 13 e dalle ore 15 alle ore 19.30. Sabato dalle ore 9 alle ore 13 e dalle ore 15 alle ore 18.
Affiliato
Studio Cesenatico Srl
Viale Roma, 77/79 47042 Cesenatico (FC)

2025 Tecnocasa Franchising S.p.A. - P. IVA 08365160152 - Via Monte Bianco 60/A 20089 Rozzano (MI). Ogni agenzia ha un proprio titolare ed è autonoma. Privacy policy | Policy utilizzo | Cookie policy